En stock
Calculez vos paiements
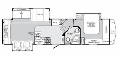
Sabre
PALOMINO SABRE 31 RETS 2012
TAUX MAINTENANT RÉDUIT À 6.95 %*
*sur approbation de crédit
28 599.00 $ Le prix initial était : 28 599.00 $.25 499.00 $Le prix actuel est : 25 499.00 $.
-
Centre de camping Amos
-
Pour couple
-
Usagé
-
35 pieds et plus
-
8499 lbs et plus
| Fabricant | Palomino |
|---|---|
| Marque | Sabre |
| Modèle | |
| Année | |
| 6 derniers #série | 005386 |
| Poids à vide | 9780 lbs |
| Poids | 8499 lbs et plus |
| Poids au timon | 1688 lbs |
| Nombre d’essieux | 2 |
| Capacité de chargement | 2018 lbs |
| Configuration | |
| État | |
| Catégorie de Longueur | 35 pieds et plus |
| Nombre de coucher | |
| Capacité d’eau fraîche | 42 gallons |
| Capacité d’eau grise | 84 gallons |
| Capacité d’eau noire | 42 gallons |
| Revêtement extérieur | |
| Nombre d’extension(s) | |
| Type de réfrigérateur | Propane et Électrique |
| Air Climatisé | 13500 Btus |
| Réservoir de propane | 2 x 30 lbs |
| Succursale | Centre de camping Amos |
| Longueur total | 35.17 Pieds |
| Disponibilité |
Exclusion : L’équipement nécessaire pour l’attelage n’est pas inclus. Veuillez en discuter avec votre conseiller aux ventes afin de choisir l’option appropriée.
Les prix incluent :
695 $ de frais de préparation (les frais d’installation d’accessoires ne sont pas inclus)
295 $ de frais de documentation
Droit sur les pneus neufs
Les montants n’incluent pas la TPS et la TVQ. Aucun frais caché.
Avis : Les photos sont présentées à titre indicatif seulement. Des différences peuvent exister entre les images et le produit ou service réel. Nous déclinons toute responsabilité en cas d’erreurs ou d’omissions.
Calculez vos paiements
Produits similaires
- Sale!
En stock
FOREST RIVER FLAGSTAFF CLASSIC 524BBS 2023
Caravanes à sellette55 999.00 $Le prix initial était : 55 999.00 $.51 999.00 $Le prix actuel est : 51 999.00 $. - Sale!
Consignation, En stock
FOREST RIVER ARCTIC WOLF 287BH 2022 (Consignation – Garantie prolongée transférable)
Caravanes à sellette54 999.00 $Le prix initial était : 54 999.00 $.49 999.00 $Le prix actuel est : 49 999.00 $. - Sale!
En stock
DUTCHMEN VOLTAGE V3005 2017
Caravanes à sellette79 999.00 $Le prix initial était : 79 999.00 $.69 999.00 $Le prix actuel est : 69 999.00 $.













